ARCHITECTURE
PRODUCTS
GRAPHICS
PHOTOS
VIDEOS
ABOUT
CONTACT
BLOG
ARCHITECTURE
PRODUCTS
GRAPHICS
PHOTOS
VIDEOS
ABOUT
CONTACT
BLOG
studio musab
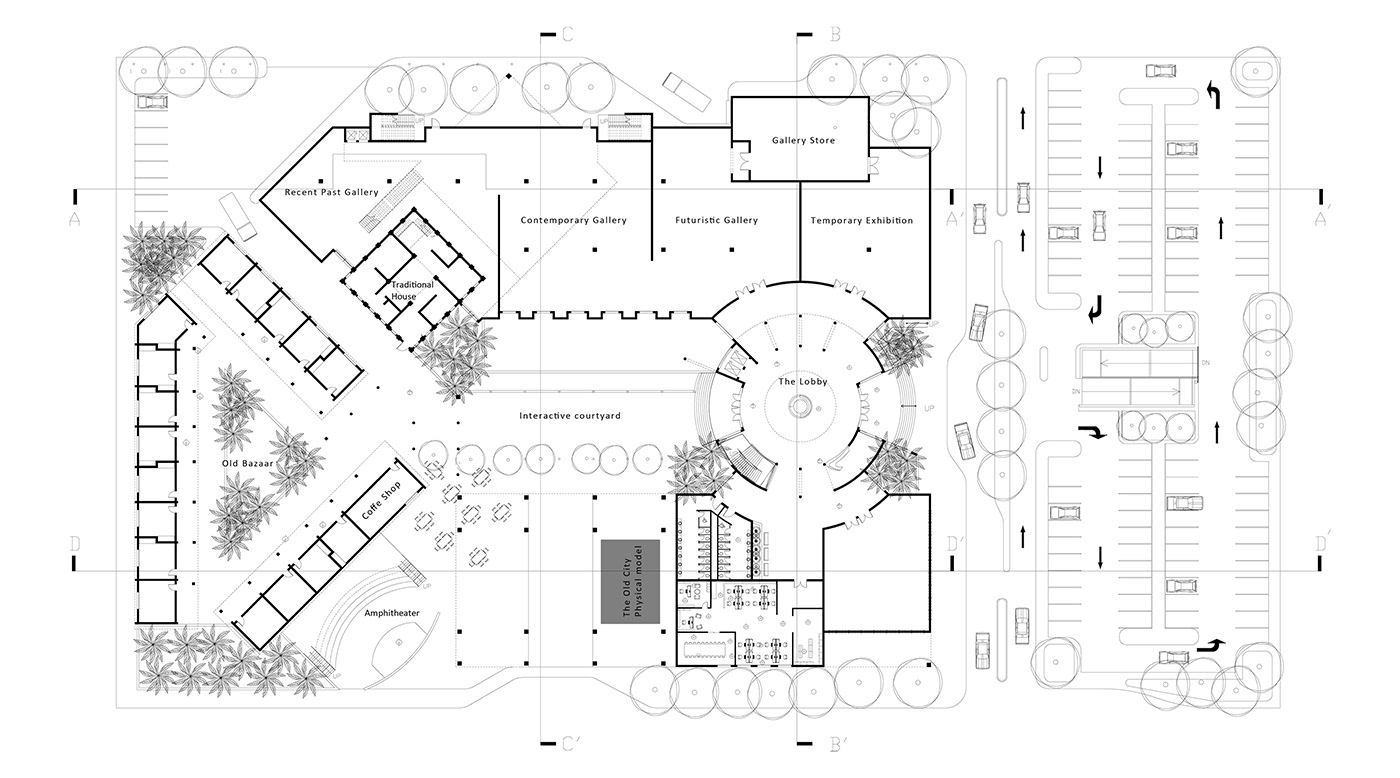
Al-Khobar Cultural Center
Academic Work
June, 2011
↑
Back to Top